会社概要
ごあいさつ
さくら建設の強み
アクセスマップ
分譲住宅事業
物件一覧 filter_none
住宅デザイン紹介
【特設サイト】ラグラス 佐島の丘 filter_none
注文住宅事業
施工実例
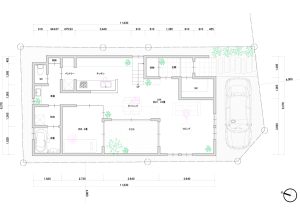
間取り・プラン
家づくりの流れ
ショールーム
来場予約
資料請求
宅地造成
集合住宅
リフォーム
店舗
事務所
駐車場
解体
2025.01.16